République  |  Brignoles (83)



Réhabilitation partielle d'un immeuble & création de logements et commerce

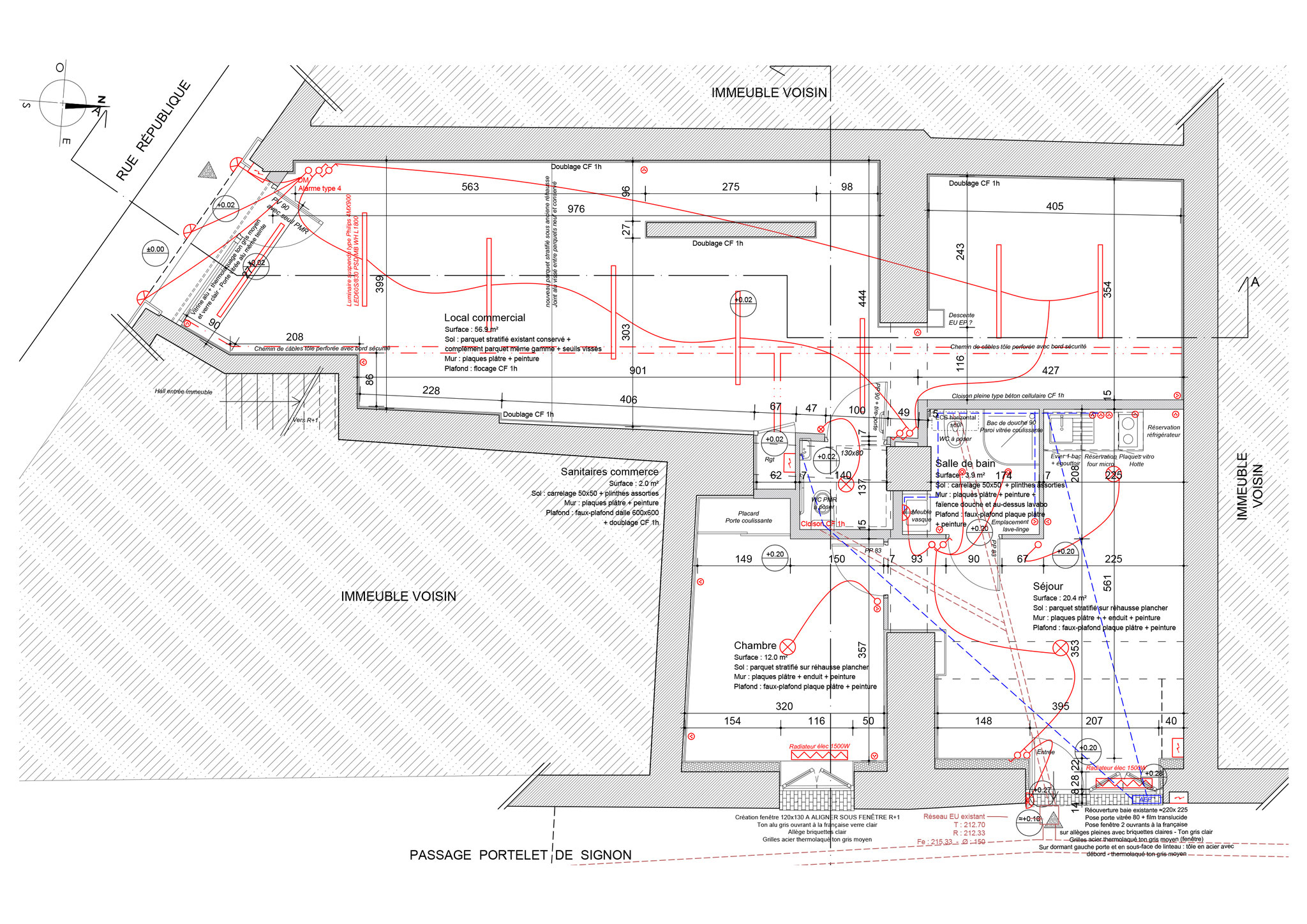
Programme : Réhabilitation du rez-de-chaussée et du premier étage d'un immeuble situé au cœur du centre historique de Brignoles. Le projet a permis de réorganiser un vaste local commercial devenu inadapté en local commercial repensé et mis aux normes, accompagné de deux appartements (T1 et T2) en cœur de ville brignolais. La rénovation apporte à l'appartement de l'étage confort thermique, belle menuiserie bois acoustique et à révéler des poutres centenaires de ce patrimoine bâti provençal.

Mission complète de maîtrise d’œuvre.

 

Maître d’ouvrage : privé

Surface : 135 m²

Calendrier :

  • études : 2018-2019
  • travaux : 2020-2021